Find auch die alte Situation besser...da "Vorbeugen" an der Platte nix bringt
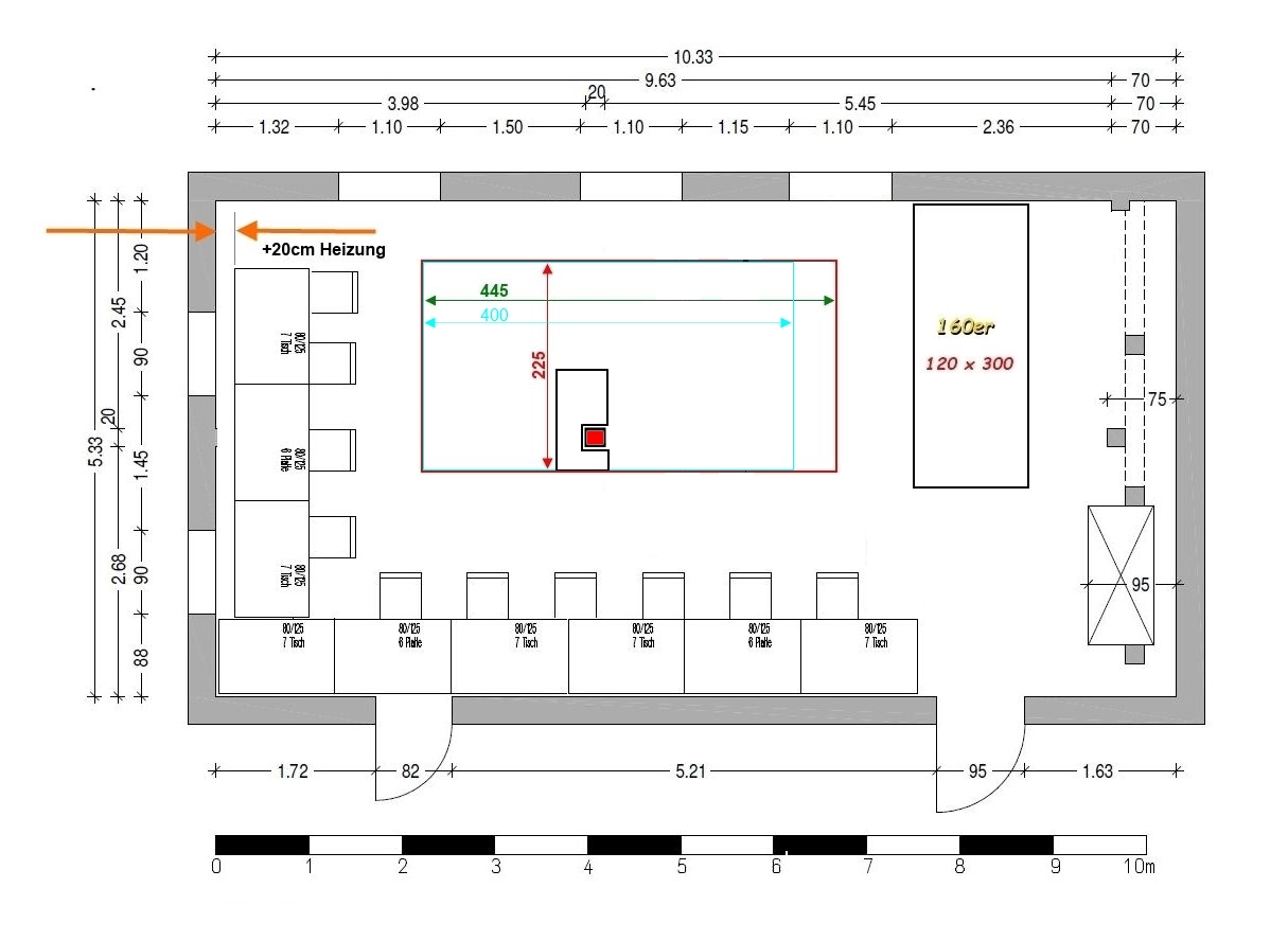
Auf der Zeichnung sieht man wie's geplant war.
(Toleranzen der eingezeichneten Platten maximal 1-2cm in echt...wenn überhaupt

)

- ..so war's geplant
..da wäre Platz genug (1,50m)
...wer awa vor Ort war...oder sich die Bilder vom Treffen anschaut sieht das es viel enger war...dumm gelaufen....kann sein das da sogar mehr als 50cm fehlen
Umstellen wie im Posting zuvor:
..in der Mitte der Platte ein Pfosten wäre ja Ok...da hat Sonntagsheizer ins schwarze getroffen...wie gesagt/geschrieben: vorbeugen is net
Einfach und Informativ isses:
Schau euch mal ältere Treffen (Bilder auf meiner Seite) an, wo die 160er in der Ecke steht...bis wohin in den Raum, das kann man z.B. gut am Fenster sehen/abschätzen
...so sieht's auch auf den anderen Plänen aus.
http://servo-forum.de/phpBB3/viewtopic. ... +140#p3108
.....

- Homberg 2015 Sommer..Platte, die Erste
...denke Platte kürzen is auch nix....noch einmal wie im Sommer aufbauen...ma gugge vor Ort.
Wegen liebevollem Körperkontakt so viel Beinfreiheit wollen ???
...so eng war's joooo doch garnet... der Durchgangsverkehr kam nur nicht liebevoll genug rüber

...awa doch zum aushalten

...oder?

.
..das können und werden wir ändern

Wegezoll in Form von Flüssignahrung dazu...saugudd
Denke immer noch: Mann fährt ja nicht den ganzen Tag 160er...deswegen die hochfrequentierte 140er schinden ?
...wird immer noch alles gut
