..gugge mol die 7
140er Unterbau in Homberg
Re: 140er Unterbau in Homberg
Gefällt mir nicht...die 2 hab ich garnet gemalt
..gugge mol die 7
..gugge mol die 7
.....lieber am Lenkrad drehen als am Rad.....
Re: 140er Unterbau in Homberg
??? ist doch aber da ????Rufus hat geschrieben:Gefällt mir nicht...die 2 hab ich garnet gemalt![]()
Nicht dein Ernst, oder?Rufus hat geschrieben: ..gugge mol die 7
Servo 160 Ersatzteile-/Einstiegs-Thread:
https://servo-forum.de/phpBB3/viewtopic.php?f=4&t=4090
https://servo-forum.de/phpBB3/viewtopic.php?f=4&t=4090
Re: 140er Unterbau in Homberg
Leider kann ich nicht zeichnen aber wenn man die beiden Platten aneinander bauen würde ( wie ich bereits erwähnte ) hätte man doch die lichte Weite zwischen den Platten einmal gespart. Ist es denn wichtig das man 100%ig um die Platten laufen kann? Ihr müsst überlegen das dann keine Stühle mehr um den Fahrbahnrand rumstehen hat und selbst über 80Kilo im Durchmesser nicht über 60 cm kommen.
Ausserdem kann man den ganzen Kram der sonst auf den Tischen, daneben und rundherum rumsteht lässig unter die Platte packen. 80% davon werden eh nur reingeschleppt und Sonntag wieder unangetastet raus.
Ausserdem kann man den ganzen Kram der sonst auf den Tischen, daneben und rundherum rumsteht lässig unter die Platte packen. 80% davon werden eh nur reingeschleppt und Sonntag wieder unangetastet raus.
"Bunt ist das Dasein und granatenstark"
Re: 140er Unterbau in Homberg
is nur Knopf drücken hier...hab durch die GTL Geschichte bischen Übung mit dem Progamm.Commander hat geschrieben:Leider kann ich nicht zeichnen aber wenn man die beiden Platten aneinander bauen würde ( wie ich bereits erwähnte ) hätte man doch die lichte Weite zwischen den Platten einmal gespart. Ist es denn wichtig das man 100%ig um die Platten laufen kann? Ihr müsst überlegen das dann keine Stühle mehr um den Fahrbahnrand rumstehen hat und selbst über 80Kilo im Durchmesser nicht über 60 cm kommen.
Ausserdem kann man den ganzen Kram der sonst auf den Tischen, daneben und rundherum rumsteht lässig unter die Platte packen. 80% davon werden eh nur reingeschleppt und Sonntag wieder unangetastet raus.
Plane immer noch das meiste mit Papier und Bleistift.
Mach einfache Skizze..Foto..ich mal's dann etwas genauer nach.
Die 160er hochkant an die 140er-Seite?...rechts oder links? Wie groß die 140er Platte? Wohin dann mit den Tischen/Stühlen ? Balken auf Platte ?
Bescheid bitte, versuchs bitte genauer zu erklären.
Zuletzt geändert von Rufus am So 17. Mai 2015, 17:07, insgesamt 2-mal geändert.
.....lieber am Lenkrad drehen als am Rad.....
Re: 140er Unterbau in Homberg
seal hat geschrieben:Nicht dein Ernst, oder?Rufus hat geschrieben: ..gugge mol die 7
...mir gefällt's...zwoiter Fluchtweg
...vor allem der extra Platz für Lolli
gugge mol die 8...ein Platz mehr...saugudd
Sollen wir einen neuen Thread eröffnen ?...hier wird's zu viel
.....lieber am Lenkrad drehen als am Rad.....
- hobby132
- Administrator
- Beiträge: 759
- Registriert: Mo 27. Mai 2013, 18:50
- Wohnort: Kraichtal-Unteröwisheim
Re: 140er Unterbau in Homberg
Auf ein neues!
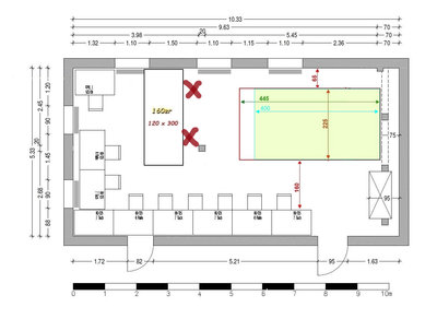
Wie wärs damit? Die 140er rechts bis ziemlich an die Balken/Wand ran, damit wäre evtl rechts nicht mehr begehbar, aber das halte ich für vernachlässigbar. Dafür ergibt sich in der Mitte zwischen den Bahnen ein recht breiter Gang, wo die 160er (rot markiert) stehen können und trotzdem noch genug Abdstand zur 140er ist. Der Balken sorgt hier automatisch für relativ kollisionsfreien Verkehr
Große Vorteiel dieser Lösung: Beide Platten können voll genutzt werden und es fallen keine Basteltische weg. Und die Bastler kommen sich auch nicht mit den Fahrern ins Gehege.
Meinungen?
Wie wärs damit? Die 140er rechts bis ziemlich an die Balken/Wand ran, damit wäre evtl rechts nicht mehr begehbar, aber das halte ich für vernachlässigbar. Dafür ergibt sich in der Mitte zwischen den Bahnen ein recht breiter Gang, wo die 160er (rot markiert) stehen können und trotzdem noch genug Abdstand zur 140er ist. Der Balken sorgt hier automatisch für relativ kollisionsfreien Verkehr
Große Vorteiel dieser Lösung: Beide Platten können voll genutzt werden und es fallen keine Basteltische weg. Und die Bastler kommen sich auch nicht mit den Fahrern ins Gehege.
Meinungen?

Re: 140er Unterbau in Homberg
(Aber bei den Basteltischen die L-Lösung ohne Einzelplatz)
Servo 160 Ersatzteile-/Einstiegs-Thread:
https://servo-forum.de/phpBB3/viewtopic.php?f=4&t=4090
https://servo-forum.de/phpBB3/viewtopic.php?f=4&t=4090
- hobby132
- Administrator
- Beiträge: 759
- Registriert: Mo 27. Mai 2013, 18:50
- Wohnort: Kraichtal-Unteröwisheim
Re: 140er Unterbau in Homberg
Oh, sorry! Falsche Vorlage erwischt. Natürlich die normale L-Lösung mit Vollbelegung der Basteltische. Danke für den Hinweis Dietmar.seal hat geschrieben:
(Aber bei den Basteltischen die L-Lösung ohne Einzelplatz)

Re: 140er Unterbau in Homberg
..also..geht doch...wie Nr8..nur noch weiter nach rechts

da könnten sogar 460x225 passen

da könnten sogar 460x225 passen
.....lieber am Lenkrad drehen als am Rad.....
Re: 140er Unterbau in Homberg
So ist's doch gut und vor Ort stellen wir fest warum nicht einfach beide Platten zusammen rücken und schon haben wir Platz ohne Ende oder ne grössere 140er.
"Bunt ist das Dasein und granatenstark"