Seite 14 von 21
Re: 140er Unterbau in Homberg
Verfasst: So 17. Mai 2015, 13:57
von Andreas
Hallo Rufus,
da ich unter 80KG bis zum Treffen nicht mehr schaffe, mal mal die Basteltische oben und links am Fenster.
Vielleicht passt das dann besser.
Gruß Andreas
Re: 140er Unterbau in Homberg
Verfasst: So 17. Mai 2015, 14:25
von Rufus
Andreas hat geschrieben:Hallo Rufus,
da ich unter 80KG bis zum Treffen nicht mehr schaffe, mal mal die Basteltische oben und links am Fenster.
Vielleicht passt das dann besser.
Gruß Andreas
Wenn die Tische oben vor der Heizung stehen...fehlen uns nochmal mind. 20cm
...links die Seite klaut eh bereits 20cm

...Heizung muß raus, is ehüberbewertet
Die Tische stehen unten gut.
trotzden..sexy

Re: 140er Unterbau in Homberg
Verfasst: So 17. Mai 2015, 14:41
von Rufus
seal hat geschrieben:
- Außerdem 140er um Stiel herum, sprich wieder nach links
- 160er wieder zurück nach rechts.
Nur
4meter (Hellblau) spricht mich unfreundlich an.

- Satz mit X
...der Balken muß ab
seal hat geschrieben:
Schlage vor:
- Kleinere Platte bei der 140er, auch wenn's wehtut.
...oder kleinere 160er, auch wenn's ganz doll wehtut.
seal hat geschrieben:
Bei den 160ern muss ich nicht drumherumlaufen können. Lediglich beim Wintertreffen / Rennen braucht man Platz hinter der Platte, damit sich dort Einsetzer hinstellen können. Da reicht aber weniger Platz, als zum Drumherumlaufen.
So geht's doch (rote Platte) ....wird leicht eng, aber geht.

- Rotes Feld 445x225
seal hat geschrieben:
Insgesamt wäre es blöd, wenn sich immer alle im Weg stehen, oder nicht mehr vernünftig gebastelt werden kann.
Gruß
Dietmar
stimmt...was machen?
Denke an sowas:
grüße
Re: 140er Unterbau in Homberg
Verfasst: So 17. Mai 2015, 15:04
von seal
@ Rufus:
In deiner Skizze mit der 160er auf der rechten Seite: Die 160er weiter nach rechts. Wie gesagt - da brauchen wir nicht soviel Platz dahinter.
Rufus hat geschrieben:
...oder kleinere 160er, auch wenn's ganz doll wehtut.
Dann lasst sie lieber ganz weg. Und bevor hier die Antworten wie "ok", " das ist die Lösung" etc. kommen - dann lasst uns auch ganz weg... Auch wenn ich mich diesmal wohl auch mehr auf die 140er konzentrieren werde - ohne
vernünftige 160er fehlt was.
Rufus hat geschrieben:
So geht's doch (rote Platte) ....wird leicht eng, aber geht.
Und nochmal die Frage - wo sollen die 160er Fahrer stehen? So funktioniert das nicht. Ich habe keine Lust, ständig irgendwelche Stühle von den Bastlern in den Rücken zu bekommen oder zur Seite treten zu müssen, weil mal wieder einer durch muss. Da hättet ihr bei den 140ern auch keinen Bock drauf.
Re: 140er Unterbau in Homberg
Verfasst: So 17. Mai 2015, 15:05
von Commander
Wie wäre es denn mit 160er und 140er auf einer Riesenplatte??
Die 160er von der Kopfseite und die 140er beidseitig zu bedienen.
Verständlich was ich meine?
Re: 140er Unterbau in Homberg
Verfasst: So 17. Mai 2015, 15:22
von Rufus
Commander hat geschrieben:Wie wäre es denn mit 160er und 140er auf einer Riesenplatte??
Die 160er von der Kopfseite und die 140er beidseitig zu bedienen.
Verständlich was ich meine?
Guter Idee...aber man kann nicht um die 160er rumlaufen, die is zu lang...muß hochkant immer an die Wand.
Mann könnte die 160er quer oben links in die Ecke stellen

so wie auf dem letzten Bild der Tisch oben links.
Re: 140er Unterbau in Homberg
Verfasst: So 17. Mai 2015, 15:24
von seal
Mit der großen Platte würde quasi dem Vorschlag von Rufus gleichkommen, die 160er kleiner zu bauen. Es sei denn, ich krieg 3m Breite von der großen Platte...
Re: 140er Unterbau in Homberg
Verfasst: So 17. Mai 2015, 15:32
von servobär
Hallo,
wie wäre es denn die Basteltische wie gaaaaaaaaaanz früher an die obere Fensterfront und um die Ecke bis zum Schrank zu stellen. Die Platte der 140er um 90° drehen und in den Raum links vom Pfeiler und die 160er parallel rechts vom Pfeiler an der unteren Wand?
Jungs, ich habe einen Riesen-Denkfehler drin!
Ich komme doch erst am Donnerstag Nachmittag.
Oh Menno ich ja auch!
Also mit dem vorhandenen Material was boseln und Donnerstag aufrüsten.
Gruß Thomas
Re: 140er Unterbau in Homberg
Verfasst: So 17. Mai 2015, 16:13
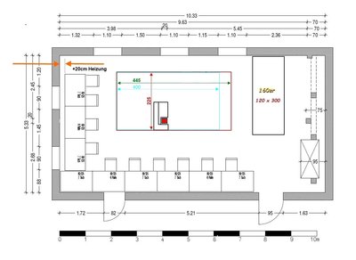
von Rufus
Re: 140er Unterbau in Homberg
Verfasst: So 17. Mai 2015, 16:20
von seal
Erstmal: Danke für deine ganze Zeichenarbeit!
Zu den Bildern:
1 und 3: Zu wenig Platz für 160er-Fahrer
4, 5, 6: Gehen Bastelplätze verloren - schlecht, vor allem im Winter.
Bleibt meiner Meinung nach nur Lösung 2 (160er noch ein Stück nach rechts). - Nachteil, Pfosten im Bereich der Platten.
Gruß
Dietmar