140er Unterbau in Homberg
Re: 140er Unterbau in Homberg
Hallo Rufus,
da ich unter 80KG bis zum Treffen nicht mehr schaffe, mal mal die Basteltische oben und links am Fenster.
Vielleicht passt das dann besser.
Gruß Andreas
da ich unter 80KG bis zum Treffen nicht mehr schaffe, mal mal die Basteltische oben und links am Fenster.
Vielleicht passt das dann besser.
Gruß Andreas
diskutiert mit uns direkt im Discord unter
https://discord.gg/tCZwMgZ
besucht mich auf http://www.servotuning.de
Und natürlich http://www.carrerawiki.de
https://discord.gg/tCZwMgZ
besucht mich auf http://www.servotuning.de
Und natürlich http://www.carrerawiki.de
Re: 140er Unterbau in Homberg
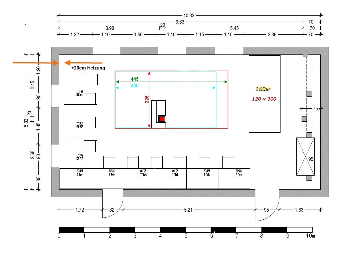
Wenn die Tische oben vor der Heizung stehen...fehlen uns nochmal mind. 20cmAndreas hat geschrieben:Hallo Rufus,
da ich unter 80KG bis zum Treffen nicht mehr schaffe, mal mal die Basteltische oben und links am Fenster.
Vielleicht passt das dann besser.
Gruß Andreas
...links die Seite klaut eh bereits 20cm
Die Tische stehen unten gut.
trotzden..sexy
.....lieber am Lenkrad drehen als am Rad.....
Re: 140er Unterbau in Homberg
Nur 4meter (Hellblau) spricht mich unfreundlich an. ...der Balken muß abseal hat geschrieben: - Außerdem 140er um Stiel herum, sprich wieder nach links
- 160er wieder zurück nach rechts.
...oder kleinere 160er, auch wenn's ganz doll wehtut.seal hat geschrieben:
Schlage vor:
- Kleinere Platte bei der 140er, auch wenn's wehtut.
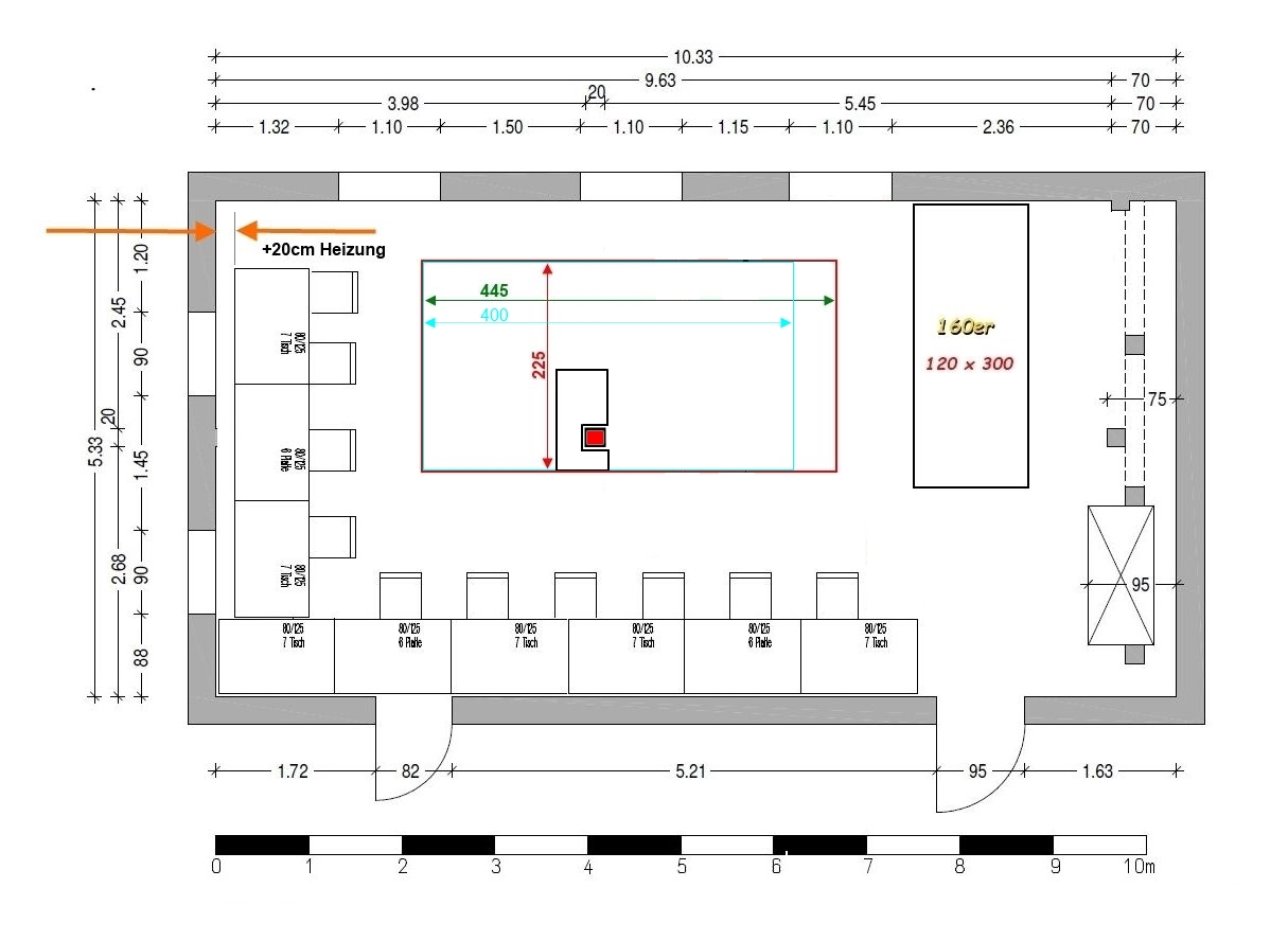
So geht's doch (rote Platte) ....wird leicht eng, aber geht.seal hat geschrieben:
Bei den 160ern muss ich nicht drumherumlaufen können. Lediglich beim Wintertreffen / Rennen braucht man Platz hinter der Platte, damit sich dort Einsetzer hinstellen können. Da reicht aber weniger Platz, als zum Drumherumlaufen.
stimmt...was machen?seal hat geschrieben:
Insgesamt wäre es blöd, wenn sich immer alle im Weg stehen, oder nicht mehr vernünftig gebastelt werden kann.
Gruß
Dietmar
Denke an sowas:
grüße
Zuletzt geändert von Rufus am So 17. Mai 2015, 15:14, insgesamt 1-mal geändert.
.....lieber am Lenkrad drehen als am Rad.....
Re: 140er Unterbau in Homberg
@ Rufus:
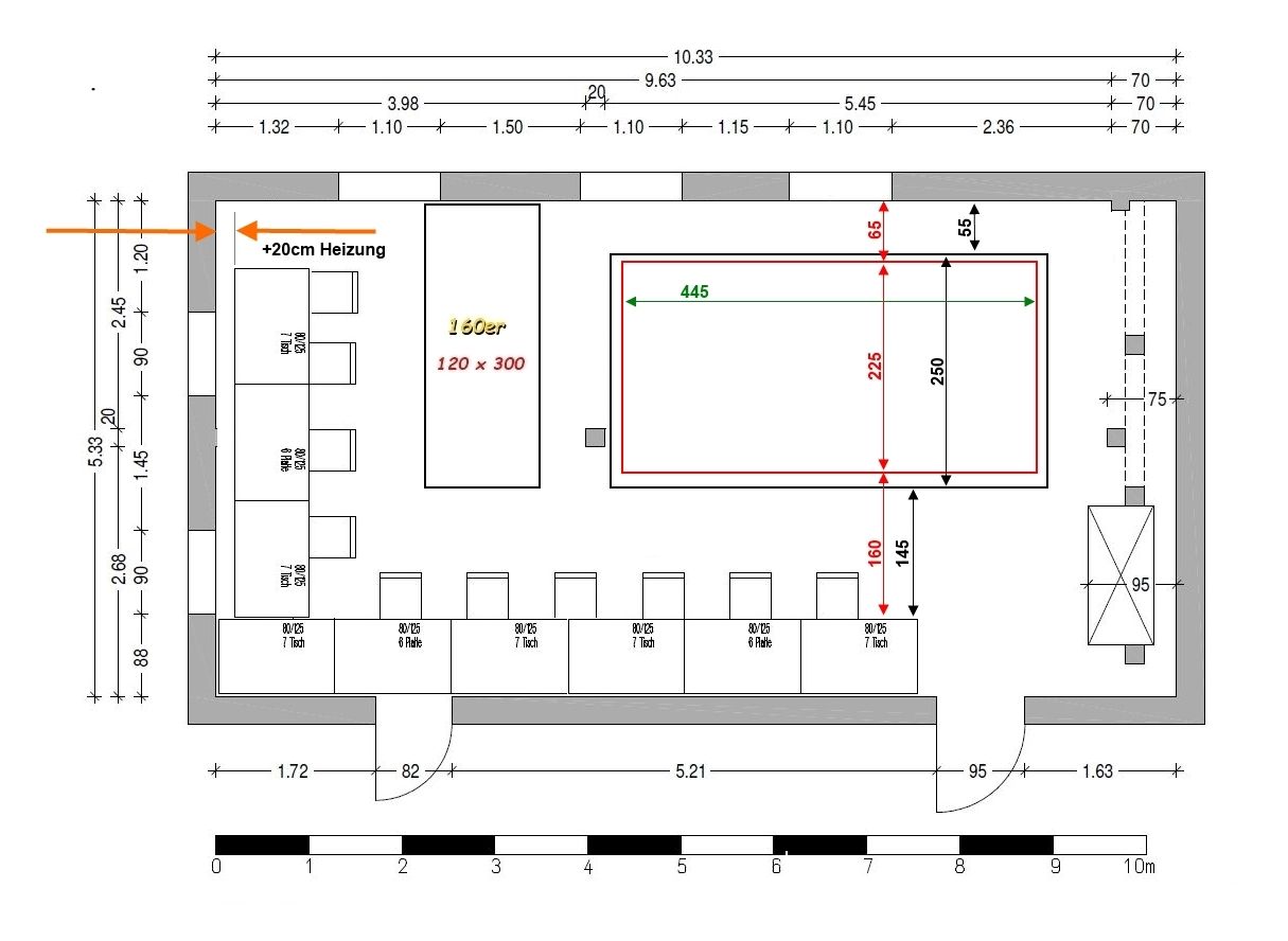
In deiner Skizze mit der 160er auf der rechten Seite: Die 160er weiter nach rechts. Wie gesagt - da brauchen wir nicht soviel Platz dahinter.
In deiner Skizze mit der 160er auf der rechten Seite: Die 160er weiter nach rechts. Wie gesagt - da brauchen wir nicht soviel Platz dahinter.
Dann lasst sie lieber ganz weg. Und bevor hier die Antworten wie "ok", " das ist die Lösung" etc. kommen - dann lasst uns auch ganz weg... Auch wenn ich mich diesmal wohl auch mehr auf die 140er konzentrieren werde - ohne vernünftige 160er fehlt was.Rufus hat geschrieben: ...oder kleinere 160er, auch wenn's ganz doll wehtut.
Und nochmal die Frage - wo sollen die 160er Fahrer stehen? So funktioniert das nicht. Ich habe keine Lust, ständig irgendwelche Stühle von den Bastlern in den Rücken zu bekommen oder zur Seite treten zu müssen, weil mal wieder einer durch muss. Da hättet ihr bei den 140ern auch keinen Bock drauf.Rufus hat geschrieben: So geht's doch (rote Platte) ....wird leicht eng, aber geht.
Servo 160 Ersatzteile-/Einstiegs-Thread:
https://servo-forum.de/phpBB3/viewtopic.php?f=4&t=4090
https://servo-forum.de/phpBB3/viewtopic.php?f=4&t=4090
Re: 140er Unterbau in Homberg
Wie wäre es denn mit 160er und 140er auf einer Riesenplatte??
Die 160er von der Kopfseite und die 140er beidseitig zu bedienen.
Verständlich was ich meine?
Die 160er von der Kopfseite und die 140er beidseitig zu bedienen.
Verständlich was ich meine?
"Bunt ist das Dasein und granatenstark"
Re: 140er Unterbau in Homberg
Guter Idee...aber man kann nicht um die 160er rumlaufen, die is zu lang...muß hochkant immer an die Wand.Commander hat geschrieben:Wie wäre es denn mit 160er und 140er auf einer Riesenplatte??
Die 160er von der Kopfseite und die 140er beidseitig zu bedienen.
Verständlich was ich meine?
Mann könnte die 160er quer oben links in die Ecke stellen
Zuletzt geändert von Rufus am So 17. Mai 2015, 15:27, insgesamt 2-mal geändert.
.....lieber am Lenkrad drehen als am Rad.....
Re: 140er Unterbau in Homberg
Mit der großen Platte würde quasi dem Vorschlag von Rufus gleichkommen, die 160er kleiner zu bauen. Es sei denn, ich krieg 3m Breite von der großen Platte...
Servo 160 Ersatzteile-/Einstiegs-Thread:
https://servo-forum.de/phpBB3/viewtopic.php?f=4&t=4090
https://servo-forum.de/phpBB3/viewtopic.php?f=4&t=4090
Re: 140er Unterbau in Homberg
Hallo,
wie wäre es denn die Basteltische wie gaaaaaaaaaanz früher an die obere Fensterfront und um die Ecke bis zum Schrank zu stellen. Die Platte der 140er um 90° drehen und in den Raum links vom Pfeiler und die 160er parallel rechts vom Pfeiler an der unteren Wand?
Also mit dem vorhandenen Material was boseln und Donnerstag aufrüsten.
Gruß Thomas
wie wäre es denn die Basteltische wie gaaaaaaaaaanz früher an die obere Fensterfront und um die Ecke bis zum Schrank zu stellen. Die Platte der 140er um 90° drehen und in den Raum links vom Pfeiler und die 160er parallel rechts vom Pfeiler an der unteren Wand?
Oh Menno ich ja auch!Jungs, ich habe einen Riesen-Denkfehler drin!
Ich komme doch erst am Donnerstag Nachmittag.
Also mit dem vorhandenen Material was boseln und Donnerstag aufrüsten.
Gruß Thomas
Re: 140er Unterbau in Homberg
Nochmal alles zusammengefasst:
...die Nr.3 kann weg.
...wie was wo
...die Nr.3 kann weg.
...wie was wo
Zuletzt geändert von Rufus am So 17. Mai 2015, 17:56, insgesamt 12-mal geändert.
.....lieber am Lenkrad drehen als am Rad.....
Re: 140er Unterbau in Homberg
Erstmal: Danke für deine ganze Zeichenarbeit!
Zu den Bildern:
1 und 3: Zu wenig Platz für 160er-Fahrer
4, 5, 6: Gehen Bastelplätze verloren - schlecht, vor allem im Winter.
Bleibt meiner Meinung nach nur Lösung 2 (160er noch ein Stück nach rechts). - Nachteil, Pfosten im Bereich der Platten.
Gruß
Dietmar
Zu den Bildern:
1 und 3: Zu wenig Platz für 160er-Fahrer
4, 5, 6: Gehen Bastelplätze verloren - schlecht, vor allem im Winter.
Bleibt meiner Meinung nach nur Lösung 2 (160er noch ein Stück nach rechts). - Nachteil, Pfosten im Bereich der Platten.
Gruß
Dietmar
Servo 160 Ersatzteile-/Einstiegs-Thread:
https://servo-forum.de/phpBB3/viewtopic.php?f=4&t=4090
https://servo-forum.de/phpBB3/viewtopic.php?f=4&t=4090